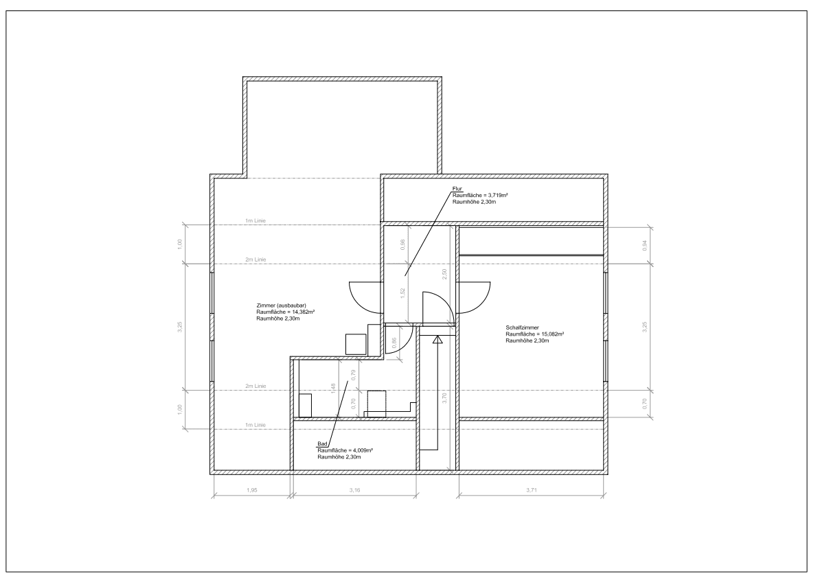
Digitalisierung (Bestandsaufnahme)
Sie wollen Ihr Haus oder Wohnung verkaufen und benötigen einfach mal einen digitalen Grundriss?
Sie sind ein Immobilienmakler und benötigen das selbe für den Verkauf?
Auch Erstellung der Wohnflächenberechnung in Zusammenarbeit mit einem Architekturbüro. Alles schon da gewesen...
Ich digitalisiere Ihre Grundrisse von bestehenden Papierplänen oder komme zu Ihnen nach Hause und vermesse diese und bringe sie auf CAD und plotte Ihnen diese auf Wunsch auch auf Papier maßstabsgetreu aus.





